Modular Medical Incinerator
Project background
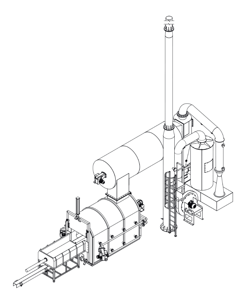
To support Malaysia’s urgent need for safe and effective medical waste management during the COVID-19 pandemic, Nurov Environmental successfully designed and constructed a mobile medical incinerator with a capacity of 500 kg/hour.
This project was executed for a licensed medical waste management company in Teluk Panglima Garang, Malaysia and was tailored to ensure compliance with stringent environmental and health regulations. The incinerator was engineered to handle a wide range of infectious and hazardous medical waste streams, including contaminated PPE, sharps, and other biohazardous materials.

Key Features
High-capacity mobile system capable of treating up to 500 kg of medical waste per hour.
Dual-chamber combustion design ensuring complete waste destruction and minimized emissions.
Integrated air pollution control system to comply with Department of Environment (DOE) standards.
Mobility and flexibility, enabling rapid deployment to areas with urgent waste treatment needs.
Robust construction and automation, allowing reliable operation while minimizing operator exposure.
By delivering this project, Nurov Environmental played a vital role in enhancing public health safety and providing a sustainable, on-demand waste treatment solution during a time of national urgency.









