Waste Oil Recovery Facility
Waste Oil Recovery Facility
Waste Oil Recovery Facility




Project Background
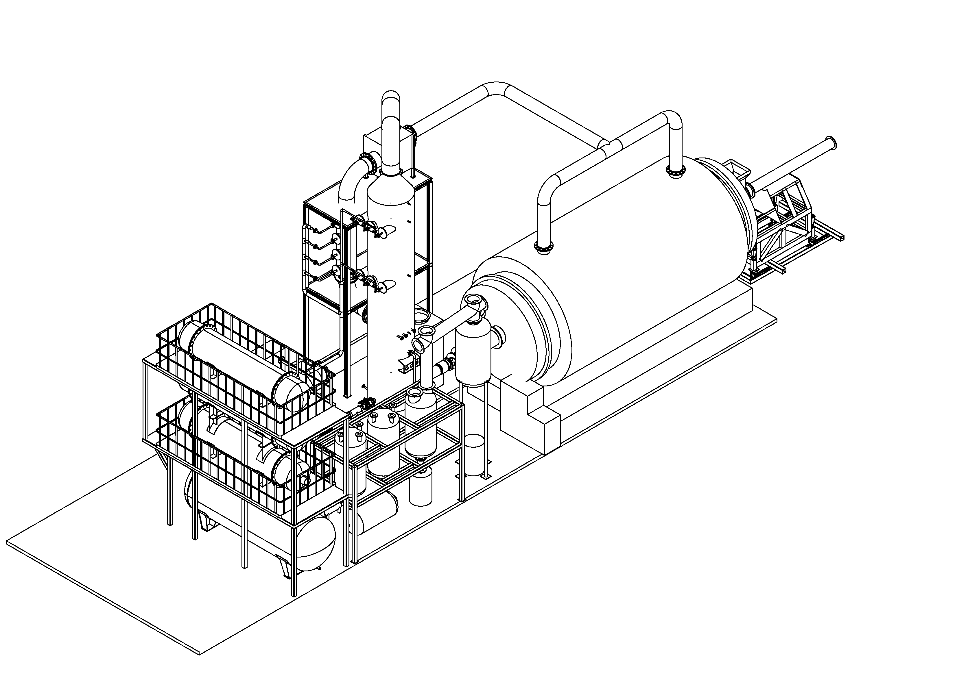
Nurov Environmental has been engaged to design and build a 5 TPD Waste Oil Recovery Facility at Teluk Kalong, Kemaman. This project plays a pivotal role in advancing Malaysia’s circular economy goals by converting scheduled oily waste streams (SW305– SW314) into high-value recovered fuel oil, reducing reliance on fossil resources while ensuring full compliance with environmental regulations.
The facility is equipped with a high-efficiency pre-treatment system featuring a centrifugal separator that performs continuous three-phase separation of oil, water, and sludge. This process significantly improves feedstock consistency, ensuring that only low water content waste oil enters the pyrolysis system.
During pyrolysis, the waste oil is heated to approximately 600°C to produce syngas, which is subsequently condensed into recovered fuel oil. Non-condensable gases are directed to the combustion chamber and utilised as supplemental fuel, enhancing overall energy efficiency. By integrating advanced pre-treatment with a closed-loop pyrolysis and energy-recovery process, the facility delivers stable performance across highly variable waste oil compositions—turning challenging waste streams into valuable resources.
To safeguard environmental compliance, the plant integrates with an air pollution control system and a Continuous Emission Monitoring System (CEMS) aligned with Department of Environment - Clean Air Regulations 2014. Designed to operate 7,920 hours per year, the facility is capable of treating waste oils with up to 50% water content, consistently producing recovered oil that meets the Department Of Environment Guidelines on Recovered Waste Oil (2010).
Nurov Environmental has been engaged to design and build a 5 TPD Waste Oil Recovery Facility at Teluk Kalong, Kemaman. This project plays a pivotal role in advancing Malaysia’s circular economy goals by converting scheduled oily waste streams (SW305– SW314) into high-value recovered fuel oil, reducing reliance on fossil resources while ensuring full compliance with environmental regulations.
The facility is equipped with a high-efficiency pre-treatment system featuring a centrifugal separator that performs continuous three-phase separation of oil, water, and sludge. This process significantly improves feedstock consistency, ensuring that only low water content waste oil enters the pyrolysis system.
During pyrolysis, the waste oil is heated to approximately 600°C to produce syngas, which is subsequently condensed into recovered fuel oil. Non-condensable gases are directed to the combustion chamber and utilised as supplemental fuel, enhancing overall energy efficiency. By integrating advanced pre-treatment with a closed-loop pyrolysis and energy-recovery process, the facility delivers stable performance across highly variable waste oil compositions—turning challenging waste streams into valuable resources.
To safeguard environmental compliance, the plant integrates with an air pollution control system and a Continuous Emission Monitoring System (CEMS) aligned with Department of Environment - Clean Air Regulations 2014. Designed to operate 7,920 hours per year, the facility is capable of treating waste oils with up to 50% water content, consistently producing recovered oil that meets the Department Of Environment Guidelines on Recovered Waste Oil (2010).